66 Elgin Street W, Renfrew, Ontario

$649,900

Previous Next

About 66 Elgin Street W

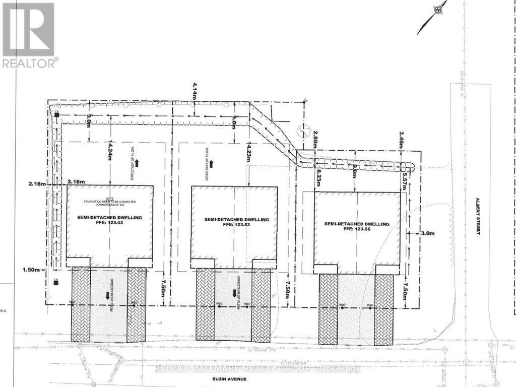
NEW DEVELOPMENT OPPORTUNITY!! Site Plan for 6 SEMI-DETACHED Bungalow Homes with each home designed to include a lower level Secondary Dwelling! A total of 12 DWELLINGS on 6 LOTS. Approx. 255' of street frontage! Located blocks from the Hospital, River, Convenience Store, Tim Hortons, Wendy's and the main Street! Sales includes the Architect Plans and Site Studies. Gas, Hydro, Water and Sewer at the street. Currently zoned CF and requires a zoning Bi-Law amendment to Residential. Newer Back Fence and cleared LOT! Do your due diligence, and see the opportunities. CALL TODAY!! (id:6289)

Features of 66 Elgin Street W

Listing # X12181887
Price $649,900
Bathrooms 0.00
Acres 0.00
Type Vacant Land

Community Information

Address 66 Elgin Street W
Subdivision 540 - Renfrew
City Renfrew
Province Ontario
Postal Code K7V3T7

Amenities

Utilities Cable, Electricity, Sewer
Parking No Garage
Is Waterfront No
Has Pool No

Interior

Fireplace No
Has Basement No

Exterior

Lot Description 98.01 x 255.19 FT|1/2 - 1.99 acres

Listing Details

OfficeRE/MAX HALLMARK REALTY GROUP

Listing Map

Request a Showing

Provide a valid email address.
When would you like to view this property?

The trademarks MLS®, Multiple Listing Service® and the associated logos are owned by The Canadian Real Estate Association (CREA) and identify the quality of services provided by real estate professionals who are members of CREA. REALTOR®. Member of CREA and more.

Listing information last updated on October 20th, 2025 at 6:46am PDT.